![]() |
|
![]() |
|
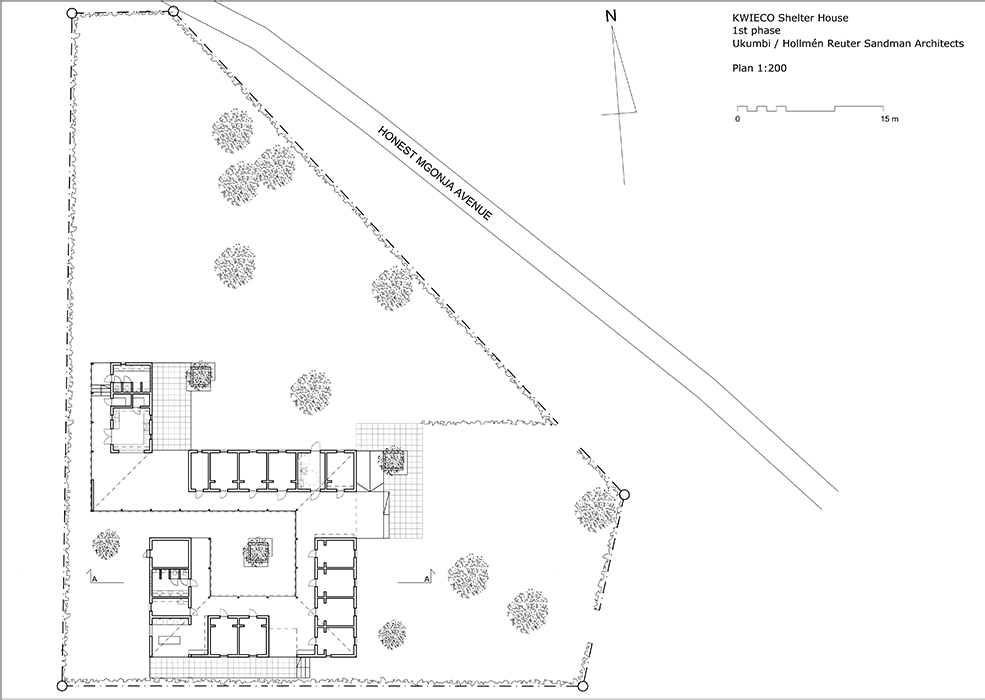
KWIECO Shelter House, Moshi, Tanzania
Kilimanjaro Women Information Exchange and Consultancy Organization (KWIECO) was founded in 1987. It provides advice on legal, health, social and economic issues to women. Women in Kilimanjaro are highly vulnerable to violations of their rights to life, liberty and security. Violence against women is permitted by social and cultural attitudes; the law has failed to provide adequate safeguards against violence, nor has it been able to promote attitudes conducive to women’s enjoyment of their fundamental rights.
KWIECO has outlined a project to develop the concept of a Shelter House. Together with Ukumbi NGO, KWIECO introduced the project to the Ministry for Foreign Affairs of Finland, and was awarded funds for setting up the necessary operations and infrastructure for the first phase. The first phase of the shelter building was opened in May 2015. Ukumbi and KWIECO are currently trying to raise funds for the second and final phase of the building.
The architecture of the Shelter House respects local culture and spatial hierarchy. Local materials, renewable energies, local manpower and know-how are used, as well as participatory planning to ensure that users have a sense of mental ownership in the shelter.
More about KWIECO and the story of Suzana, whom they've helped: http://www.kepa.fi/jasensivut/jasenblogi/15216
Hollmen Reuter Sandman architects
![]() |
![]() |
![]() |
![]() |
![]() |
![]() |
![]() |
![]() |
![]() |
![]() |
![]() |
![]() |
![]() |
![]() |
![]() |

















